Selected Project

Abbott Lakeside Duplex

Duplex | Kelowna, BC

A high-end duplex on Abbott Street in Kelowna, designed for a constrained lakeside site in the heart of the hospital area. Strong horizontal lines, deep overhangs, and a substantial brick palette give the building a grounded presence, drawing on mid-century modern and arts-and-crafts influences while responding carefully to planning and site constraints.

Project Overview

Designed for a constrained lakeside site

Set along Abbott Street near the lake in Kelowna’s hospital area, this duplex was shaped by both a rare setting and a demanding approval process. The site came with significant constraints, and the project involved extensive planning work and ongoing coordination with the City to arrive at a solution that could satisfy the realities of the property while still producing a strong and livable result.

From the beginning, the design aimed for a sense of permanence and weight rather than lightness or novelty. The long horizontal rooflines, deep overhangs, and substantial use of brick were intended to give the building a grounded presence, drawing on mid-century modern and arts-and-crafts influences, including the broad, sheltering character seen in the work of Frank Lloyd Wright and some of his contemporaries.

Although this is a duplex, the goal was not to make it feel thin or repetitive. Care was taken to give the building rhythm, privacy, and a sense of substance, while still organizing each home around generous living spaces, strong indoor-outdoor connection, and a comfortable relationship to the site.

Inside, the material palette continues that idea of warmth and solidity. Wood tones, carefully framed views, and a sculptural stair help carry the design language through the interior. Outdoor spaces were also treated as part of the design rather than leftover areas, allowing each residence to feel connected to the lakeside setting in a meaningful way.

Even as an older project, it still reflects an approach that values proportion, restraint, and durability over trend. The result is a building with real presence: shaped by its constraints, but not defined by them.

Project Drawings

Selected floor plans

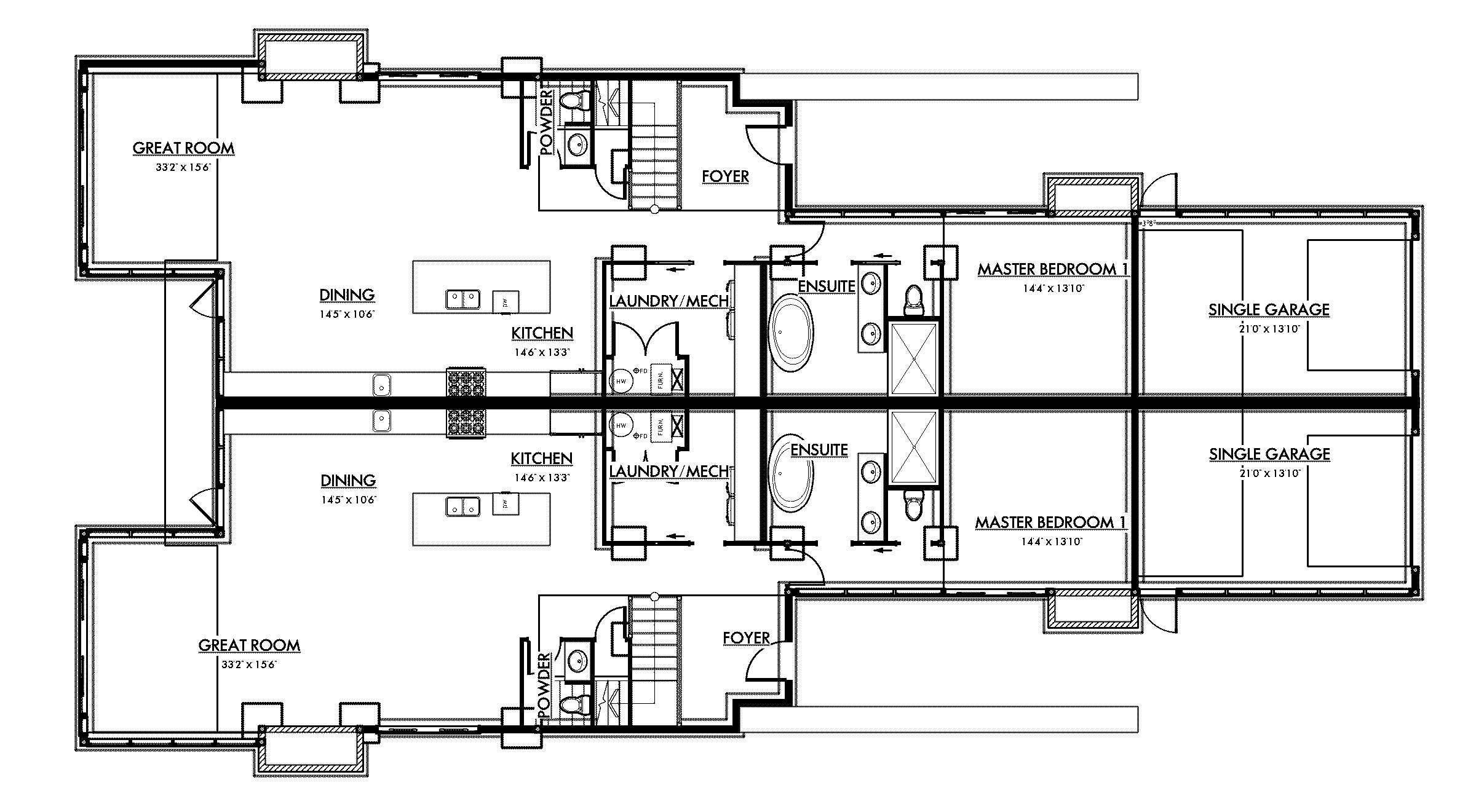
Main floor plan

The main floor was organized to give each residence generous shared living space while maintaining privacy and a clear sense of individual entry. Kitchen, dining, and great room areas are arranged along the length of the plan to reinforce the building’s horizontal character and connect daily life to the outdoor spaces beyond.

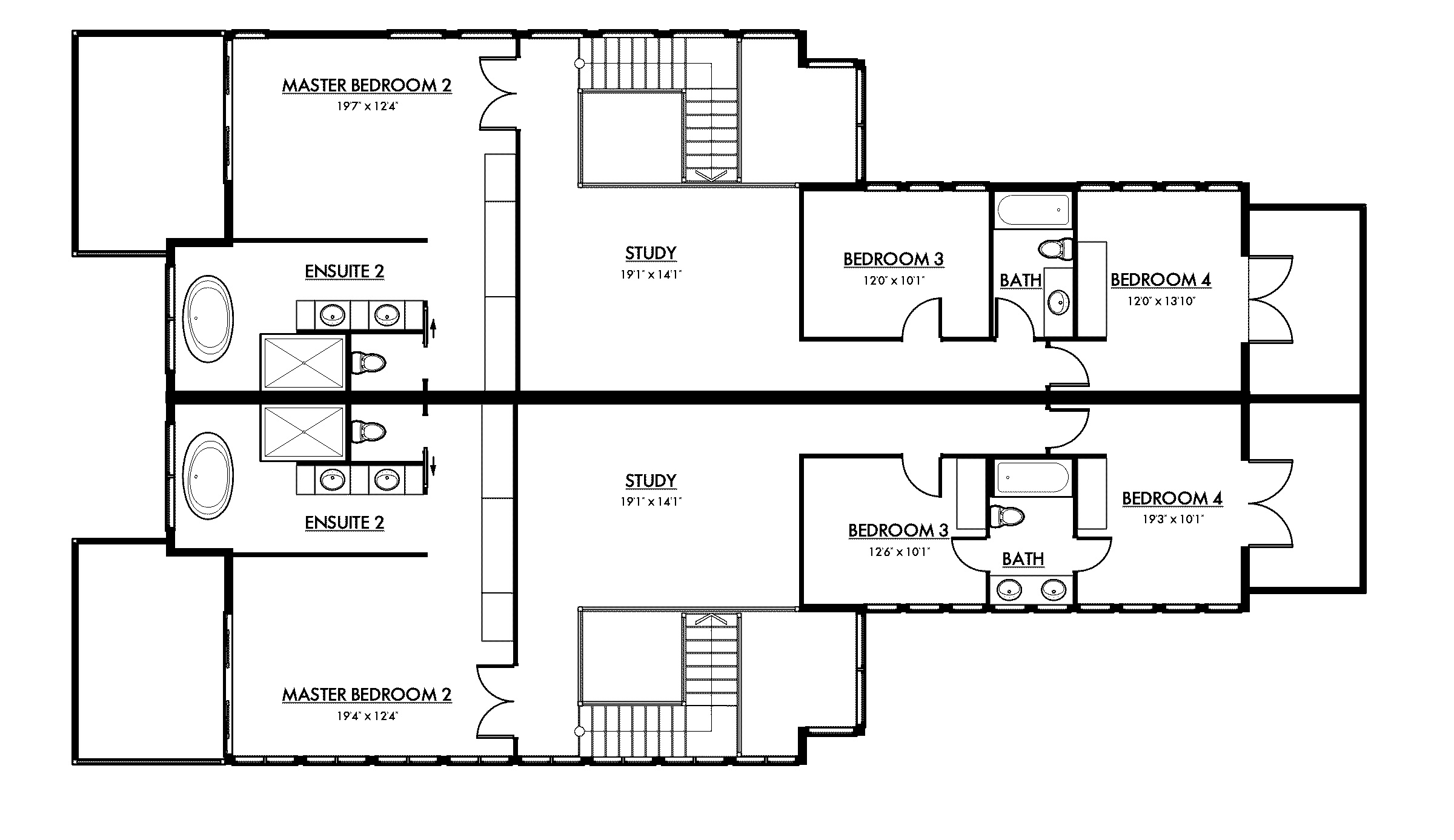
Second floor plan

Upstairs, the plan balances family bedrooms and study space with a more private primary suite arrangement. The layout was designed to make the most of the available footprint while keeping circulation straightforward and preserving a strong sense of openness within the homes.