Selected Project

Cabernet Court

Custom home | West Kelowna, BC | 2021

Cabernet Court was designed as a custom family home with a clear, composed exterior language and a plan shaped around practical day-to-day living. The owners wanted a house that felt grounded and classic without becoming overly traditional, so the design combines simple forms, restrained detailing, and a layout organized to support both family life and long-term use.

Project story

A family home planned for daily life and long-term use

This home was designed for clients who wanted something warm, substantial, and timeless, with a character that nodded to more traditional precedent while still feeling clean and current. Rather than chasing a trend-driven look, the design focused on proportion, simple massing, and a restrained material approach that would hold up well over time.

The exterior composition uses straightforward gable forms, flush fascia details, and controlled trim to give the house a quiet sense of presence. There are subtle European influences in the overall expression, but the design remains firmly rooted in practical residential living rather than stylistic display.

Inside, the layout was organized around a main-floor primary suite and open shared living areas, allowing the house to function well for everyday life while also supporting aging in place over time. The kitchen, dining, and great room were planned as the centre of the home, with adjacent support spaces like the scullery and laundry helping the plan work harder behind the scenes.

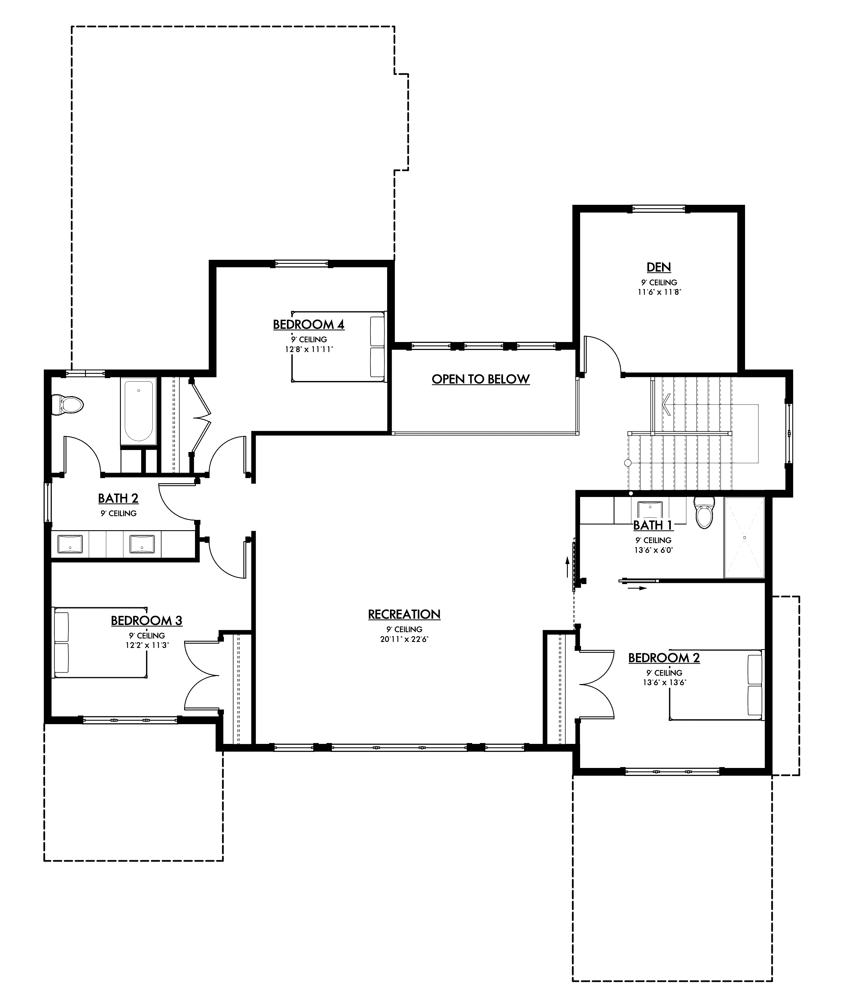
Because the house was not developed with a full basement, the upper floor took on a more important role in the family layout. Secondary bedrooms, bathrooms, a den, and a large recreation area were placed upstairs to give the home the additional shared space it needed, while still keeping the main level calm, functional, and focused on daily living.

Project facts

Key project information

Project type
Custom home

Location
West Kelowna, BC

Year
2021

Builder
GPC Fine Custom Homes

Layout
Primary bedroom on main floor

Upper floor
Secondary bedrooms, den, and recreation area

Lower level
Mechanical basement with crawl space construction elsewhere

Completed work

Completed exterior

Project Drawings

Floor plans

The home is organized around main-floor daily living, with the primary suite and shared spaces below, and children’s bedrooms, recreation space, and overflow living above.

Main floor plan

Second floor plan

Design studies

Early studies that shaped the home

Early renderings helped establish the home’s overall character, massing, and material balance before construction.

Get in touch

Thinking about a similar project?

Thinking about a custom home with a similar layout approach or overall design direction? Get in touch to discuss your project.

Built by GPC Fine Custom Homes.

Project photography courtesy of GPC Fine Custom Homes.

Contact IHS Design Back to projects