Copper Ridge Residence
Single-family home | West Kelowna, BC | 2022
Copper Ridge Residence was designed for an irregular sloping lot where the shape of the site and the natural grade change had a direct influence on the house. Rather than forcing a simple footprint onto a difficult property, the design was developed to work with those conditions, resulting in a home that feels settled into the site and practical in the way it is planned.
A contemporary family home shaped by site and practicality
Copper Ridge was designed as a contemporary family home with a clear, restrained exterior expression. Horizontal rooflines, a controlled material palette, and balanced proportions give it a strong street presence without pushing it into something flashy or overstated. The aim was to create a home that feels confident, durable, and comfortable rather than showy.
Inside, the layout balances openness with everyday function. The main floor is organized around connected living spaces, with the kitchen, dining, and great room forming the centre of daily family life. A generous entry creates a strong sense of arrival, while practical spaces like the mudroom, pantry, and oversized garage help the house work well beyond the more visible public rooms.
The project was also shaped by practical construction realities. With bedrock close to the surface, a full basement was possible but would have added significant cost. A slab-on-grade approach made better sense, allowing the project to stay more efficient without giving up comfort, spatial quality, or the features that mattered most to the clients.
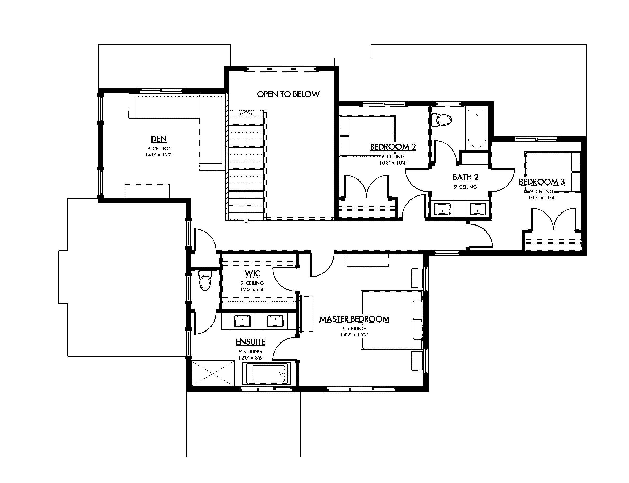
Upstairs, the home continues that balance between openness and privacy. The bedroom layout is compact and efficient, while the upper-floor den and the volume carried up from the entry below help the second level feel brighter and less compressed. The result is a family home that responds carefully to both the opportunities and constraints of the site.
Everyday spaces
Kitchen
The kitchen was planned as the functional centre of the home, connecting cooking, gathering, and views.
Living room
Open living spaces and large windows help the main floor feel bright, connected, and easy to live in.
Primary bedroom
The primary suite was designed as a calm, private retreat within the larger family home.
Den / office
An upper-level den provides flexible space for work, reading, media, or quieter daily use.
Early studies that shaped the finished home
Early renderings helped establish the overall character of the house and test how the massing, material palette, and outdoor living areas would come together on the site. Now that the home is complete, they work best as supporting material that shows the thinking behind the final built result.
Selected floor plans
Main floor plan
The main floor was organized around bright, connected everyday living. Kitchen, dining, and great room spaces work together as the centre of the home, while the mudroom, pantry, office, and oversized garage support the more practical rhythms of daily use.
Second floor plan
Upstairs, the plan brings the bedrooms and family spaces together in a way that feels compact, efficient, and open. The volume of the entry below helps carry light and spaciousness into the second floor while keeping the bedroom layout straightforward and functional.