Creekside Carriage House
Carriage house | Kelowna, BC | 2019
Creekside Carriage House was designed to go beyond the feel of a typical carriage house. Working within a compact footprint and the constraints of a rear infill site, the goal was to create a home that still felt open, modern, and generous in daily use. A two-storey living volume, defined entry sequence, and carefully planned outdoor space help give the project a stronger sense of scale and livability than its size might suggest.
Designed to feel more generous than its footprint
Creekside Carriage House was developed as a compact infill home behind an existing dwelling in Kelowna’s Mission Creek area. From the beginning, the aim was to create something more substantial than a typical carriage house: a small home with a clear architectural identity, a modern character, and spaces that feel generous rather than merely efficient.
A key move in the design was the added volume through the main living area, where the full two-storey height helps the interior feel brighter, larger, and more open than the footprint alone would suggest. The entry was given more definition than is often typical in a project of this size, and exterior planters and outdoor living space help extend that sense of arrival and livability beyond the walls of the house.
The primary suite was also planned to feel less like a compromise and more like what you would expect in a full-size home. That same thinking shaped the project throughout: to make a compact dwelling feel complete, comfortable, and well considered rather than simply reduced.
Its location near Mission Creek adds another layer to the project. The site is close to trails and outdoor amenities while still being minutes from the everyday convenience of central Kelowna, making it well suited to a smaller home that still feels connected to both nature and the city.
Site Strategy
This early site plan shows how the new dwelling was positioned behind the existing house, using the depth and shape of the property to create a compact infill project while maintaining a clear relationship between buildings, access, and outdoor space.
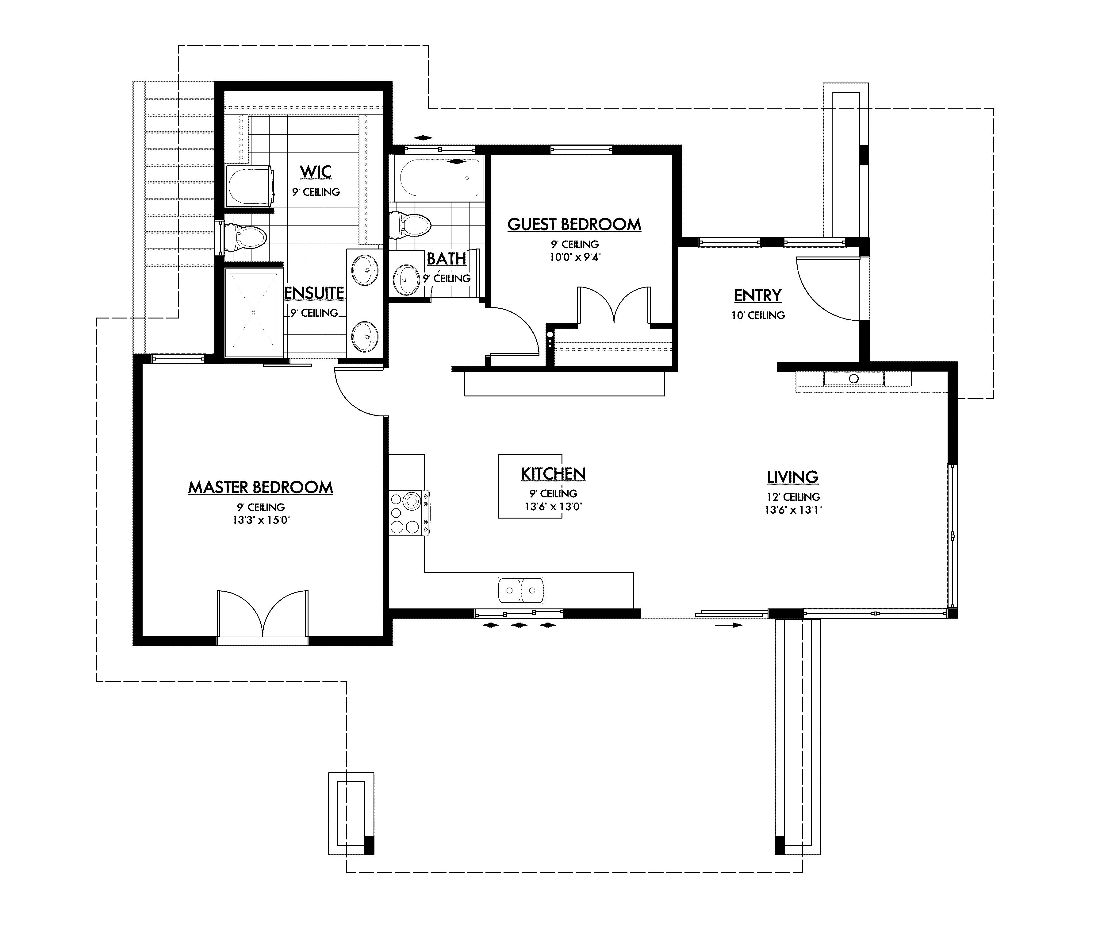
Floor plan
The challenge was not just to fit the required rooms into a compact plan, but to make the home feel composed and comfortable rather than reduced. The layout provides two bedrooms, a clear entry, open living space, and a private primary suite, while the extra volume through the main living area helps the interior feel larger and more generous than a conventional carriage house plan.
Built by Sandmor Construction Ltd.
Planning support by Urban Options Planning Corp.
Back to projects