Project in Progress

Okanagan Centre Road Garage Addition

Accessory building addition / carriage house renovation | Okanagan Centre, BC | Development permit review

Okanagan Centre Road Garage Addition began with a straightforward goal: make the existing garage and carriage house work harder for the owner while respecting the character already established on the property. The design adds enclosed parking below and a more generous living area above, including a new master bedroom at the second level.

Project Overview

A modest addition shaped to feel integral to the property

Okanagan Centre Road Garage Addition began with a straightforward goal: make the existing garage and carriage house work harder for the owner while respecting the character already established on the property. The design adds enclosed parking below and a more generous living area above, including a new master bedroom at the second level.

Rather than treating the addition as a separate object, the design reworks the roof forms and massing so the new work feels consistent with the existing buildings on site. By carefully raising portions of the structure and reorganizing the roof, the project creates taller, more functional garage bays below while expanding the livable space above.

A key part of the story is sensitivity. The addition was designed to relate to the principal dwelling and existing built forms on the lot, using familiar lines, roof shapes, and proportions so the new work feels integrated rather than incidental. Even though the building is modest in scale, the project demonstrates that small additions still deserve careful design thinking and can have a significant impact on daily life.

Though modest in scale, it is a good example of how a small intervention can meaningfully improve daily life when it is handled with care and restraint.

Project Drawings

Selected floor plans

Main floor plan

The lower level reorganizes the garage into three more useful zones, including two new enclosed bays with increased ceiling heights. A long, taller bay and a second 10-foot bay improve flexibility for parking, storage, and everyday use, while maintaining a clear connection back to the existing structure.

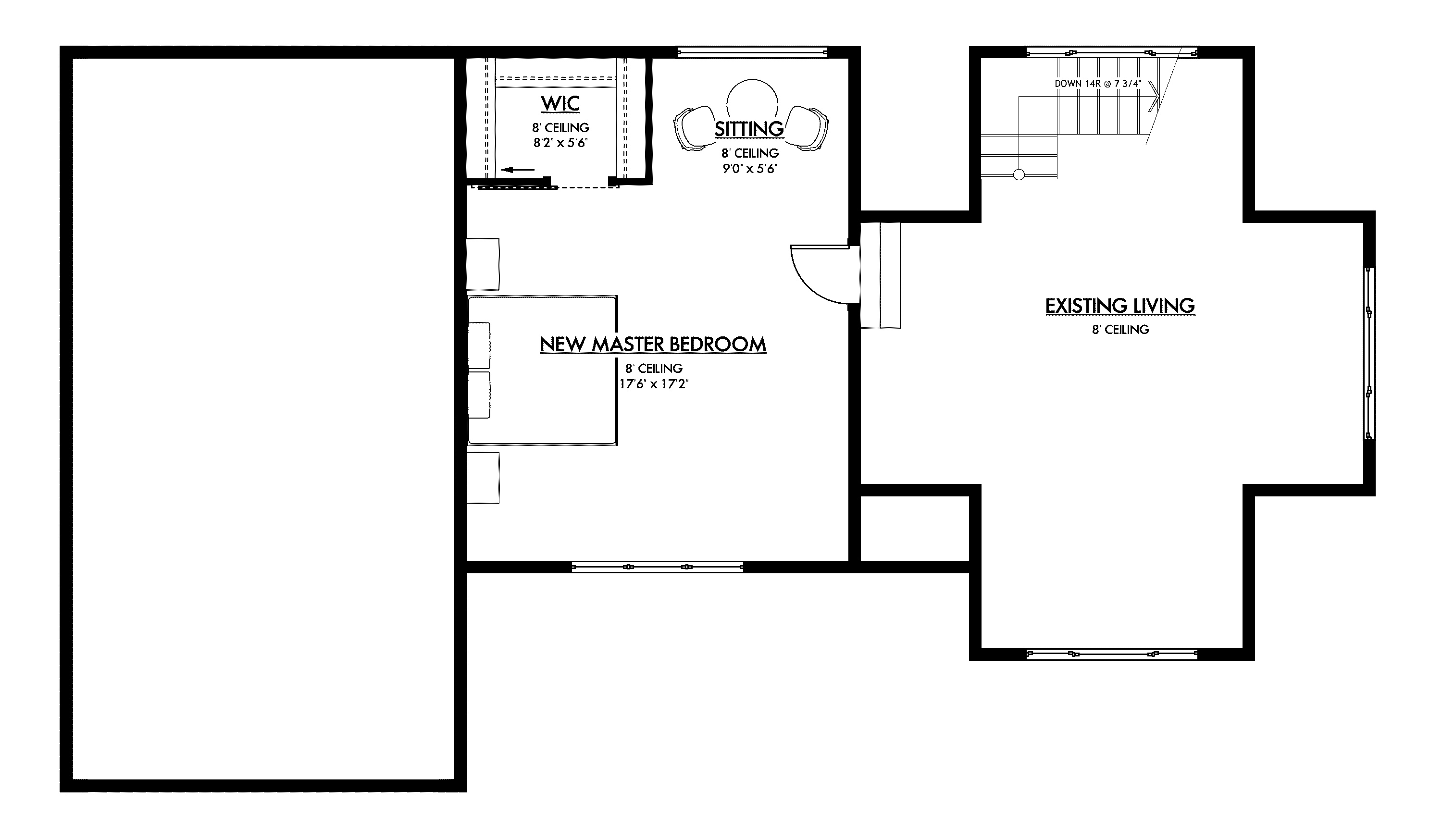
Second floor plan

Above, the addition creates a more generous private living area centered around a new master bedroom. A compact sitting area and walk-in closet help complete the suite, showing how a relatively small footprint can still deliver a meaningful improvement in livability.