Selected Project

Pinnacle Ridge Residence

Custom home | West Kelowna, BC | 2024

A hillside home designed to open toward the lake while still working well for everyday family life. The planning balances view, light, privacy, and outdoor living, giving the house a clear contemporary expression without losing warmth or livability.

Project Overview

Designed around outlook and daily life

This home was designed to make the most of its hillside setting and broad views over the lake while still feeling comfortable in daily life. The main living spaces open outward, with large expanses of glazing, a generous covered deck, and a close relationship between the kitchen, dining, and living areas.

From the street, the house is defined by clean rooflines, carefully proportioned massing, and a restrained material palette. Wood soffits and warm-toned cladding soften the darker metal elements and keep the composition from feeling severe.

Inside, the design is shaped by light, volume, and outlook. The main living area uses height and glass to draw the view deep into the home, while the interior finishes keep the focus on proportion, texture, and setting rather than excess.

Outdoor living was an important part of the design from the start. The covered deck extends the main floor in a natural way, creating space for gathering, cooking, and relaxing while staying connected to the interior. Below, the pool area completes the rear yard and reinforces the sense that the house was planned around daily use as well as its hillside setting.

The project was carried out with a high level of care in construction, and that shows in the finished work.

Floor plans

Selected floor plans

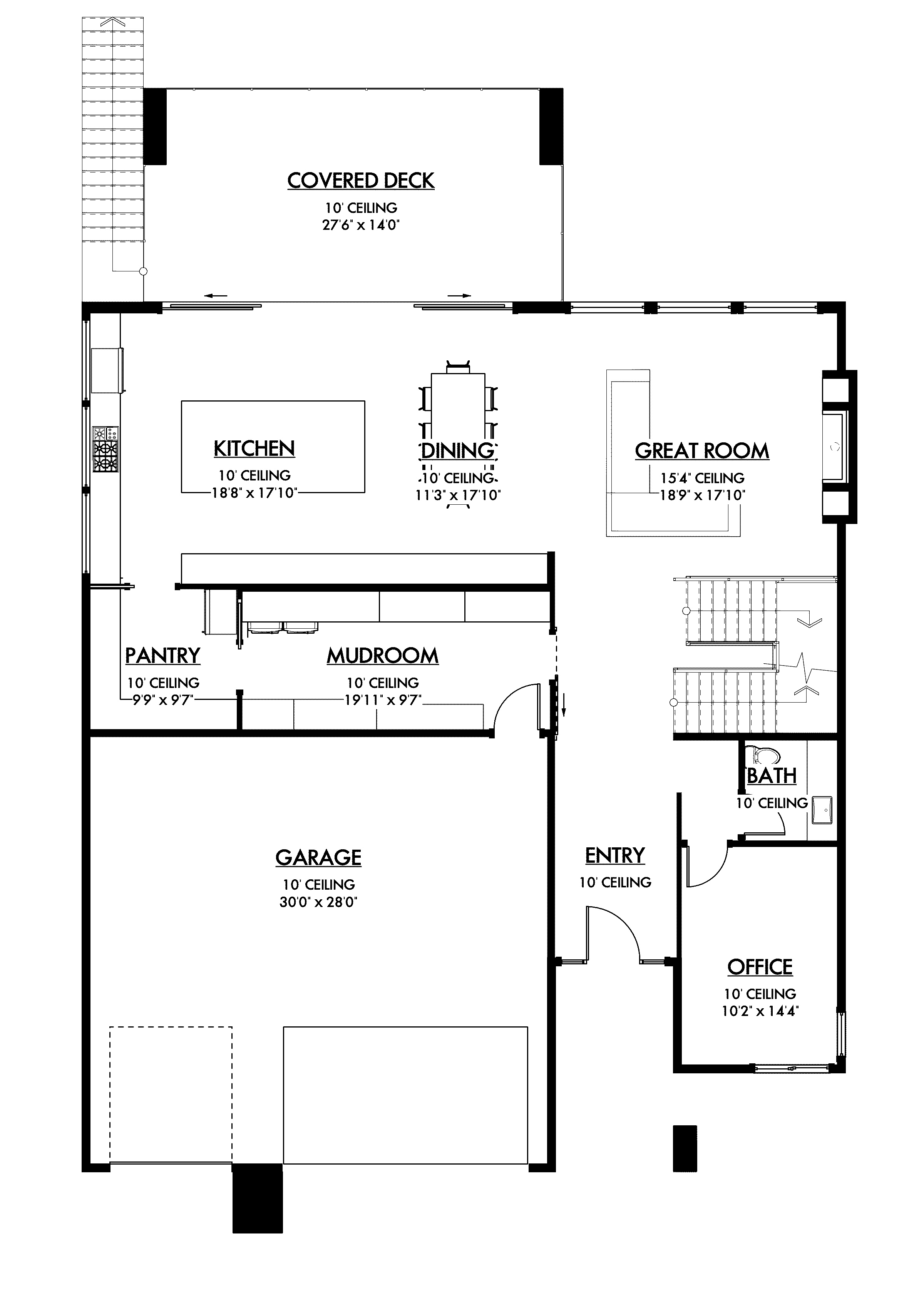
The planning of the home was shaped by the hillside site, the lake view, and the need for open, connected living spaces that still support everyday family life.

The main floor is organized around the view, with the kitchen, dining, and great room opening directly to the covered deck and outdoor living area.
The upper level creates a more private family zone, with the primary suite and secondary bedrooms arranged to balance openness, separation, and daily function.
The lower level adds recreation and family space while extending the home's connection to outdoor living below.